
吊腳平頂木別墅特殊款+平面布置圖+效果圖:適合度假酒店、私人會所

背面右側(cè)

吊角 右側(cè)

吊角 左側(cè)

吊角正面

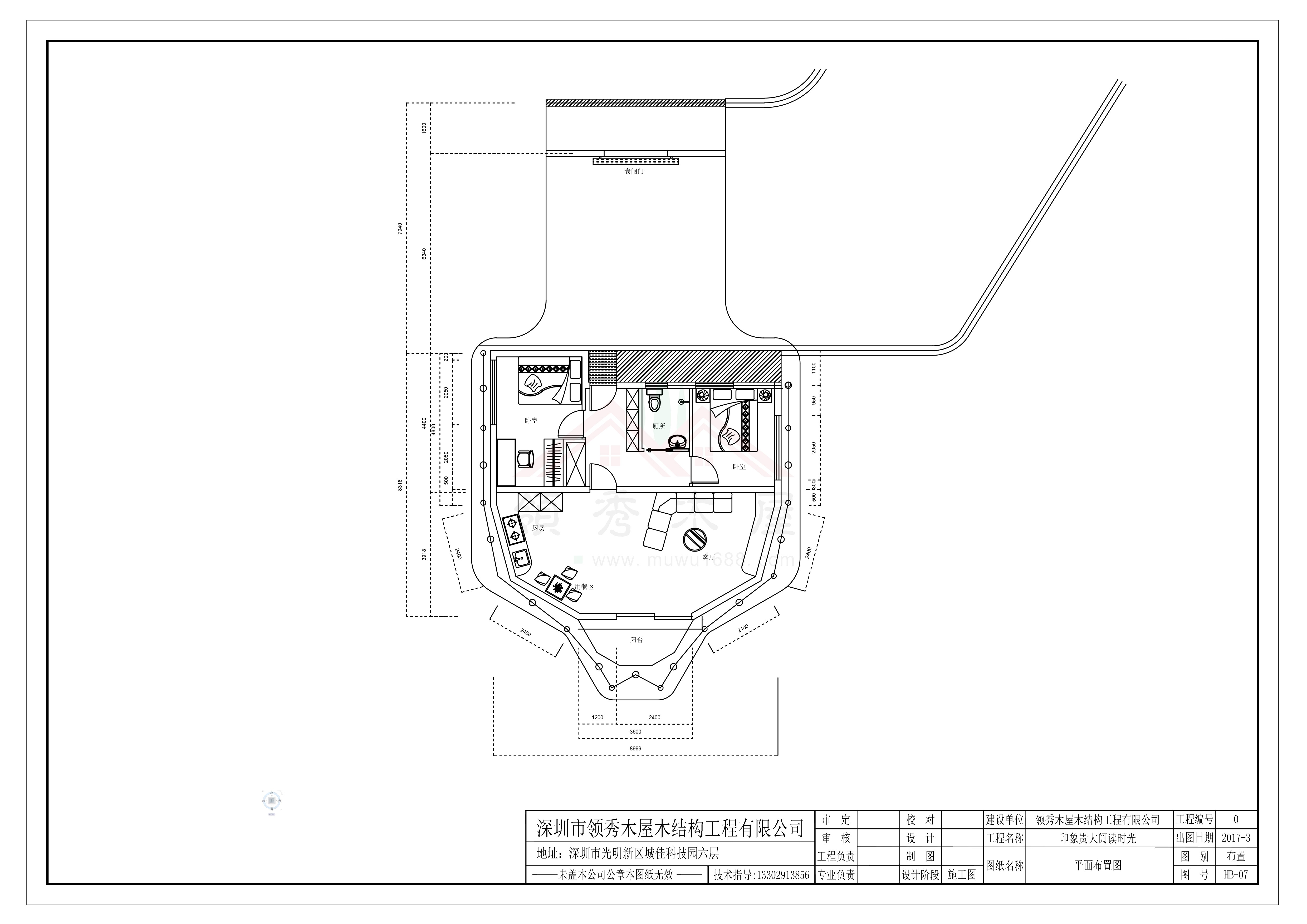
平面布置圖
老網(wǎng)站不再更新,請前往我們的全新 VIP高端案例畫冊網(wǎng)體驗 3D 實景展示
?? 點擊進(jìn)入新版高端案例畫冊網(wǎng) (VIP.MUWU1688.COM)