
MW6戶外景觀木別墅+平面圖+配置圖:木屋面積自由選擇、木屋外觀保持原木顏色,適用于:度假酒店、居住戶型。

左側(cè)

背面

右側(cè)

左側(cè)斜視圖

右側(cè)斜視圖

左側(cè)

右側(cè)

木別墅配置圖

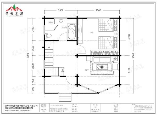
木別墅二層平面圖

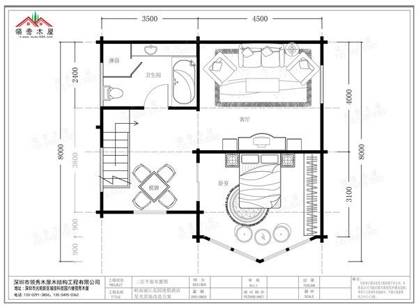
木別墅一層平面圖
老網(wǎng)站不再更新,請前往我們的全新 VIP高端案例畫冊網(wǎng)體驗 3D 實景展示
?? 點擊進入新版高端案例畫冊網(wǎng) (VIP.MUWU1688.COM)